El encargo ha consistido en el diseño, ejecución y construcción de un edificio residencial en la calle Claudio Coello 121, en pleno barrio de Salamanca, Madrid. Su excepcional ubicación supone una oportunidad y a la vez un reto por su presencia visible desde el puente de Juan Bravo en la Castellana.
Conscientes de la importancia de su localización, el proyecto presenta un carácter dual a través del contraste en su materialidad. Hacia la calle Claudio Coello, el edificio responde a la organización clásica del barrio, de fachadas tripartitas con zócalo, cuerpo y coronación. Esta vista más urbana se muestra estricta, sin ornamento, modulada mediante un despiece de paneles prefabricados de hormigón blanco.

Sin embargo, hacia su interior, una fachada más ligera y amable se abre hacía el jardín mediante grandes paños de vidrio cubiertos de una celosía de madera. Un volumen bajo en forma de vivienda en dos alturas cierra el jardín otorgando escala humana al conjunto edificado.
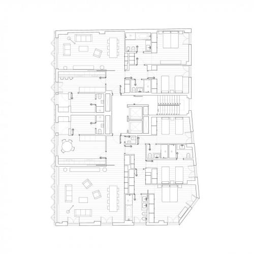
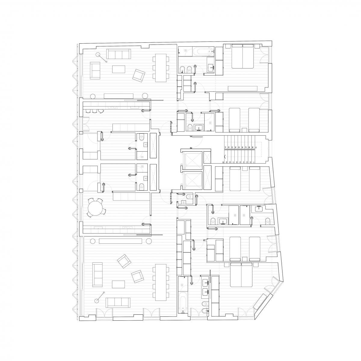
El proceso de diseño ha incorporado la participación de los usuarios en la configuración de su vivienda. Tras definir una banda tipo de espacios servidores (almacenaje, vestidores, servicios, instalaciones, etc.), se ha interpretado este soporte en cada planta según las necesidades y requisitos de los habitantes, haciendo su casa a medida desde un patrón colectivo de diseño.

El cuidado diseño constructivo ha permitido que el edificio destaque por una alta calificación en eficiencia energética (A). Se ha prestado especial atención a la composición de la envolvente, seleccionando aislamientos y carpinterías óptimas, junto a la contribución de la celosía de madera para el control de la incidencia solar, garantizando las mejores vistas sobre la ciudad y manteniendo la privacidad de los usuarios en sus espacios domésticos.
La innovación en soluciones técnicas ha definido un sistema centralizado de instalaciones de gran eficiencia, optimizando la energía consumida en función de la demanda cambiante de los usuarios. Este sistema centralizado constituye un esqueleto central que, junto con el diseño arquitectónico, ha ofrecido una gran flexibilidad en el proceso de personalización realizado junto con los futuros habitantes del edificio.

Galería del proyecto
Información del proyecto
Autores: Enrique Arenas, Luis Basabe, Luis Palacios
Colaboradores: Andreas Benéitez, Franca Sonntag, Ángel Villanueva, Lidia Fernández
Arquitecto Técnico: José Ramón Gutiérrez
Estructura: Ceider sl
Instalaciones: R. Úrculo Ingenieros Consultores
Paisaje: Benavides-Laperche
Mobiliario: Vitra
Constructora: Gomendio
Promotor: Proyectos Alconsa sl
Fotografías: Imagen Subliminal
Arenas Basabe Palacios es una empresa de arquitectura y urbanismo afincada en Madrid. Sus socios, Enrique Arenas Laorga, Luis Basabe Montalvo y Luis Palacios Labrador, trabajan juntos desde 2006. Desde entonces, han ganado más de una treintena de premios en concursos de arquitectura y urbanismo. Cuentan con obra construida de muy diversas escalas. Han dado conferencias en múltiples instituciones y presentado su trabajo e investigación en exposiciones internacionales. Han publicado y expuesto su obra en España, Francia, Italia, Suiza, Reino Unido, Austria, Alemania, Chipre, India y Corea.
EnteUrbano ha recibido este proyecto en la sección PUBLICAR, donde profesionales del arte, el diseño y la arquitectura envían sus trabajos para ser publicados.
Curso Online: Aprende Revit desde cero. Con este curso descubrirás las ventajas de diseñar en BIM (Building Information Modelling). Iníciate y da los primeros pasos en Revit, la opción BIM más completa del mercado. Ver Curso








