El concepto de casa visto desde la tradición es cosa del pasado. Aspectos que antes se consideraban importantes ahora pasan a un segundo plano, porque se ha comprendido que la vida contenida en su interior es la condición mas valiosa. La casa D4 se concibe según tres estrategias principales que definen sus estrategias de diseño.
La estructura es la arquitectura.
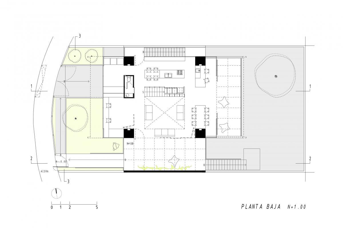
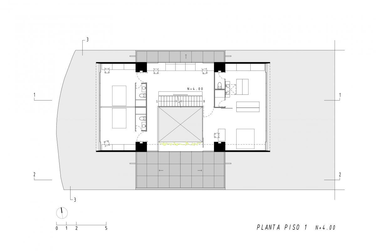
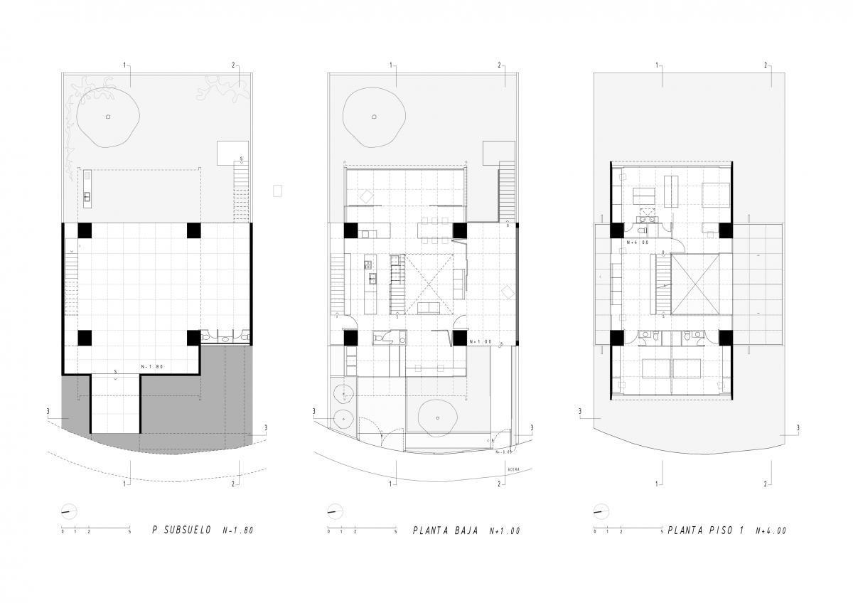
La casa es una caja estructural abstracta de 4 niveles apoyada sobre 4 puntos, con luces de 7,15m y voladizos de 4,70m. Sus elementos, columnas, losas nervadas, diafragmas y pasamanos viga, se equilibran por contrapesos (volados), poniendo en evidencia la gravedad como recurso universal de la arquitectura. Al mismo tiempo la transmisión de cargas al suelo sobre un mínimo de apoyos, permite liberar el espacio, generando orden y una espacialidad interior amplia.

La flexibilidad espacial como atributo.
El proyecto se diseñó cómo un contenedor de espacio capaz de acoger programas indeterminados en su interior, incorporando dos núcleos sanitarios flexibles que permiten variaciones y adaptaciones a futuro. La escalera lateral externa es un elemento clave teniendo en cuenta que puede replicarse en los pisos superiores para independizar y distribuir nuevos usos en cada planta: vivienda, oficinas, consultorios…

El lugar sugiere como construir la arquitectura.
Más allá de construir un objeto físico, la arquitectura construye lugares para la vida y relaciones con su entorno. Por su sentido de permanencia, estas relaciones -conexiones- tienen ser oportunas y contribuir en la vida interior del edificio. La casa se emplaza sobre una colina a 2300 msnm en los Andes bajos ecuatorianos como un espacio umbral -caja abierta-, interceptando el paisaje lejano de la cordillera y la ciudad de Loja sobre el valle a 2100msnm, aprovechando de esta manera la incidencia solar en ambos frentes.

Galería del proyecto
Información del proyecto
Arquitectos: Edwin Hurtado + Holger Cuadrado.
Año finalización construcción: 2020
Superficie construida: 595 m2
Ciudad: Loja
País: Ecuador.
Ingeniería: Gica_ingenieros, Ing. Carlos Aguilar, Ing. Ximena Saavedra.
Colaboradores: Jefferson Condoy, Joffre Calva, José Luis Castillo, Daniel Cabrera, Jonathan Jiménez.
Créditos Fotografía: Juan Alberto Andrade, Holger Cuadrado.
Holger Cuadrado Arquitectura, es un estudio-taller de arquitectura y paisaje, que centra sus actividades desde la practica del proyecto y desde la academia, entendidas como dos dimensiones necesarias para la construcción del conocimiento.
EnteUrbano ha recibido este proyecto en la sección PUBLICAR, donde profesionales del arte, el diseño y la arquitectura envían sus trabajos para ser publicados.
Curso Online: Aprende Revit desde cero. Con este curso descubrirás las ventajas de diseñar en BIM (Building Information Modeling). Iníciate y da los primeros pasos en Revit, la opción BIM más completa del mercado. Ver Curso








