Palma Hideaway sirve de estudio/vivienda a una joven emprendedora que pasa la mayor parte del tiempo viajando por trabajo. Es el resultado de una exploración continua de como habitar locales en planta baja situados en tejidos densos urbanos. ( continuando el estudio realizado anteriormente en Raval Hideaway en Barcelona)

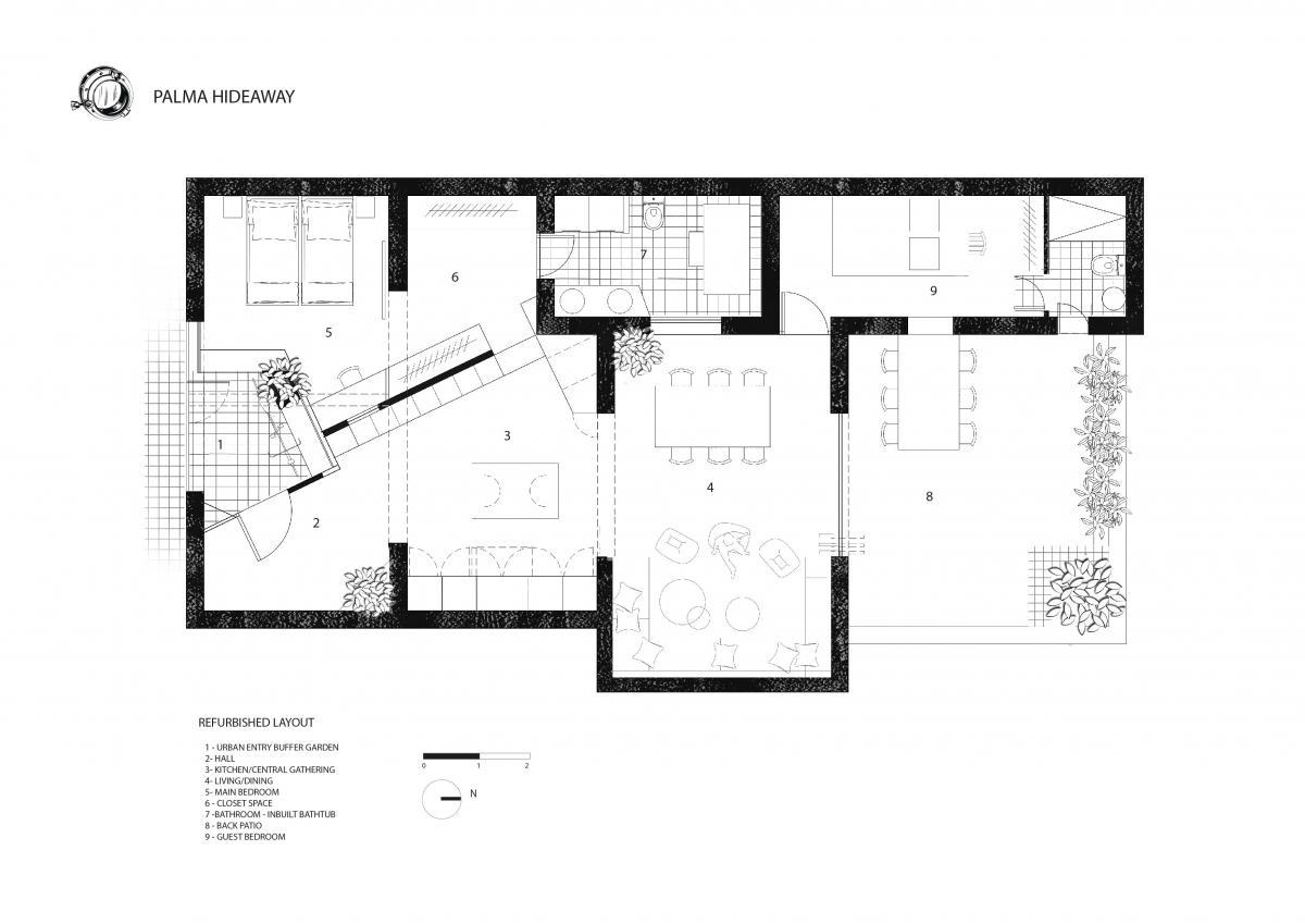
El espacio se encuentra en la frontera del centro de la ciudad. Un local de 92m2 donde poder contagiarse de la vitalidad del lugar y a la vez pudiendo aislarse del exterior para disfrutarlo como lugar de descanso y trabajo. Antiguamente un taller mecánico de motocicletas se caracterizaba por techos altos, estructura mixta de hormigón y marés y un patio desaprovechado al final del local.
La transición que se generaba entre la calle peatonal y el acceso resultaba muy violenta, por lo que se consideró esencial crear un espacio intermedio que actuara como amortiguador. Este jardín funciona como entrada de luz y ventilación, a la vez que actúa como una barrera acústica y de privacidad sobre el interior. Para poder dotar a éste espacio de la mayor versatilidad posible se disponen varias capas que se pueden combinar mediante un gran numero de variaciones. Una primera fachada de librillo exterior acabada con malla perforada tamiza la luz, ventila y dota de un primer grado de privacidad hacia el interior. Posteriormente, una segunda fachada de vidrio y carpintería de madera, aísla acústicamente el local de la calle peatonal. Un banco de madera y un macetero de baldosa completan el espacio que actua de transición y desahogo.


Una vez dentro, la propuesta se genera alrededor de una partición diagonal que sirve como separación, almacenamiento y una guía direccional hacia el patio trasero. Este tabique de madera sirve de apoyo a toda actividad principal de la vivienda además de barrera acústica y visual entre el espacio de noche y el espacio de día.
A la izquierda de la nueva partición se sitúa el dormitorio, vestidor y cuarto de baño. Estos espacios más domésticos están elevados unos cm del suelo para crear una sensación más recogida y para generar una barrera visual hacia la calle. El cuarto de baño se aprovecha de este desnivel para bajar y producir una bañera/ducha de obra.
El lado derecho de la partición se reserva a los espacios comunes. Un suelo continuo de hormigón pulido con árido visto recorre el resto de la vivienda para crear mayor sensación de continuidad y amplitud. Una cocina centrada junto con una mesa alta de trabajo se sitúan en el centro del espacio fomentando los encuentros y reuniones. Esta mesa alta esta co-diseña y producida por un estudio joven Mallorquin 2MonosStudio y dota al espacio de un toque de color y frescura a la envolvente más minimalista.
El salón y el comedor se sitúan cerca de la apertura al patio trasero. En este espació a modo de homenaje se enmarcaron los calendarios pin-ups existentes encontrados en el antiguo taller.


Galería del proyecto
Información del proyecto
Autor: Mariana de Delás
Ubicación: Palma de Mallorca – España
Arquitecto líder: Mariana de Delás
Equipo: Ines Bonet, Blanca Gomez Rodriguez -Arias
Puesta en escena y vegetación: Belén Larraz
Diseño de mesa: Mariana de Delás & 2Monos Studio
Superficie construida: (m2) – 92m2
Fotografía: Jose Hevia
Mariana de Delás es un estudio multidisciplinar que se centra en la realización de proyectos que tienen un enfoque idealista, divertido y artístico de la arquitectura. Centrados en la sostenibilidad en entornos urbanos y rurales, su principal objetivo es vincular la naturaleza y la ecología experimentando con nuevas herramientas y tecnologías siguiendo una metodología práctica. Además de proyectos arquitectónicos, también desarrollan instalaciones, producto, exposiciones, interiores y pequeños proyectos explorando los cruces entre arte y arquitectura.
EnteUrbano ha recibido este proyecto en la sección PUBLICAR, donde profesionales del arte, el diseño y la arquitectura envían sus trabajos para ser publicados.
Curso Online: Aprende Revit desde cero. Con este curso descubrirás las ventajas de diseñar en BIM (Building Information Modelling). Da los primeros pasos en Revit, la opción BIM más completa del mercado. Ver Curso








